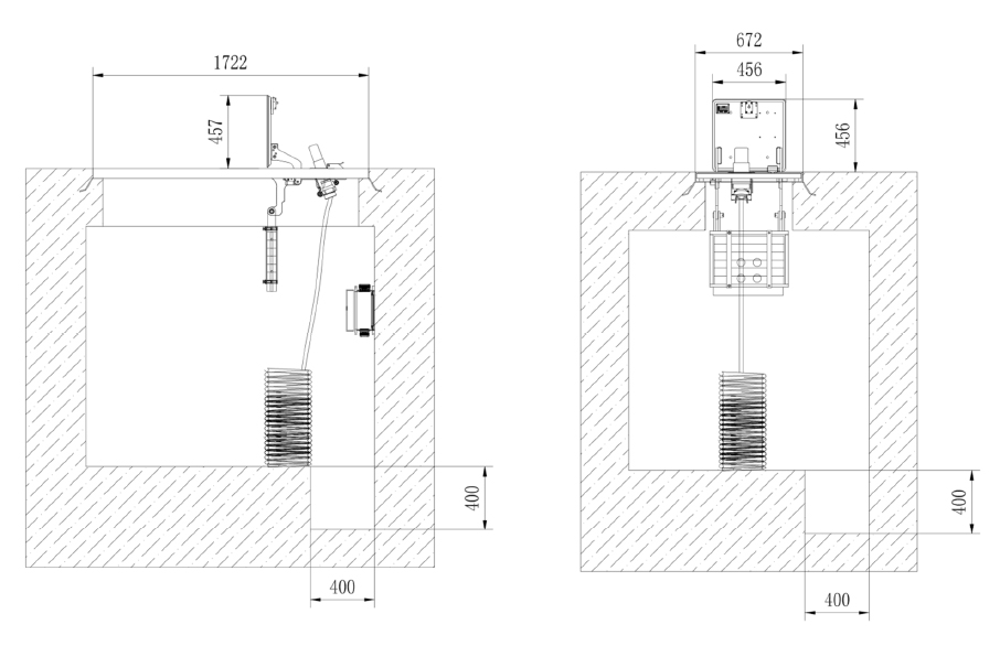
Кессон (люковый hatch pit)

Напольный сервисный люк предназначен для обеспечения электроэнергией 400 Гц и другими инженерными коммуникациями воздушных судов, во время их стоянки в ангаре или на перроне.

Конфигурация

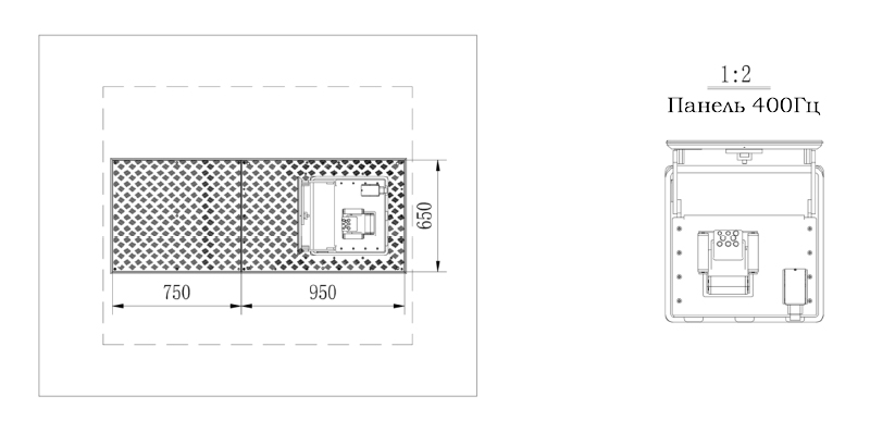
  • Рама, основная крышка люка и сервисная крышка с классом нагрузки EN124 и MHT6107/2014
  • Механизм противовеса
  • 1 или 2 разъема 400 Гц (90 кВА) с кабелями и держателями
  • Розетки 400 В 50 Гц, соединения для сжатого воздуха и прочие коммуникации
  • Корзина для разделения кабелей 400 Гц
  • Опции: концевой выключатель, кнопка аварийной остановки, сигнальная лампа и насос

Особенности

  • Удобство эксплуатации в любое время, сервисные точки расположены выше уровня перрона
  • Опциональная сервисная крышка
  • Низкие затраты на обслуживание
  • Механизм подъема с противовесом
  • Регулируемое усилие вытягивания
  • Все детали горячеоцинкованные, винты и крепежные элементы из нержавеющей стали
  • Компактные размеры, индивидуальные параметры могут быть разработаны в зависимости от объема заказа
  • Удобство обслуживания

Стандарты

  • En 124 F900 / E600
  • MHT6107/2014

Выбор вариантов

Тип люка Розетка 50/60 Гц 400Гц Пневматический разъем Концевой выключатель Аварийная остановка
400В 230В
Стандартный люк 1 1-2 1-2 1-2 да да
Компактный люк 1 1 1 1-2 да да

Мы можем спроектировать и изготовить сервисный люк в полном соответствии с требованиями заказчика.

brand

Revool (Shanghai) Industrial Technology Co., Ltd. Проектирование, производство, продажа и сервисное обслуживание систем управления кабелями, систем зарядки для соединения с берега на судно, соединения с судна на берег.

Контактная информация

ТОО HYPER ENERGO (ГИПЕР ЭНЕРГО)

Телефон: +7 (7172) 97-21-20

E-mail: info@hyper-energo.kz